L’assemblea dei soci della Casa del popolo di Grassina ieri ha approvato la cessione dell’area parcheggio (circa 6.000 metri quadrati) al Comune, che procederà secondo l’iter dell’esproprio bonario. Alla Casa del popolo saranno versati circa 234mila euro oltre alla stipula di una convenzione di lunga durata (20/30 anni) per l’uso della parte che resterà di proprietà del circolo e che sarà usata in occasione del mercato settimanale: in parte per i banchi, in parte per la sosta delle auto.
La proposta di acquisizione da parte dell’Amministrazione comunale è stata approvata con 42 voti favorevoli, due astenuti e 6 contrari. L’unica condizione posta dall’assemblea dei socie è che il canone annuale previsto dalla convenzione (7.800 euro annui) venga periodicamente rivalutato in base all’indice Istat. Una clausola che non dovrebbe costituire un ostacolo alla conclusione della lunga vicenda.

Le prossime tappe sono: l’invio al Comune della lettera ufficiale di accettazione della proposta, la firma dell’atto di acquisizione, il versamento della somma pattuita. Ci vorrà qualche mese. Dopodiché si potrà procedere con il progetto esecutivo di ristrutturazione del parcheggio, la gara d’appalto e l’avvio dei lavori.
“Accogliamo con grande soddisfazione la scelta dell’assemblea della Casa del popolo – commenta il sindaco Pignotti -. Abbiamo sempre lavorato affinché si trovasse una soluzione bonaria nell’interesse della comunità e senza contrapposizioni tra Amministrazione comunale e Casa del popolo. Ringrazio il circolo per aver messo a disposizione della collettività, per tanti anni, l’area dove ora sorgerà il nuovo parcheggio pubblico”.
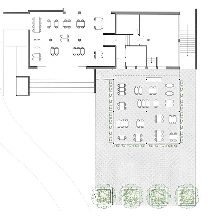
Con i soldi incassati, la Casa del popolo procederà a realizzare la nuova pizzeria. Questa proposta è stata approvata dall’assemblea dei soci con 48 voti a favore e due astenuti. Il progetto prevedere la ristrutturazione di alcuni locali al piano terreno, che diventeranno una cucina perfettamente attrezzata, e l’apertura di una porta a destra della scalinata d’accesso per il collegamento con l’esterno dove sarà realizzata la pizzeria. Prevista una struttura leggera con pareti trasparenti per la stagione al chiuso (100/150 coperti), ma rimovibili per l’estate quando i posti potranno facilmente moltiplicarsi.
Saranno piantati alcuni alberi per un miglior inserimento paesaggistiico, coordinato con l’arredo urbano previsto per il parcheggio. “Sarà una cucina di comunità – spiega Vanni Materassi, presidente della Casa del popolo – Aperta ad ospitare progetti solidali delle varie realtà del territorio, dalla squadra di calcio alle associazioni di volontariato”.







Fonte della Fata Morgana, terminati i lavori anti-umidità: restaurati acquidocci e antichi drenaggi